Notice of Build Works on Campus

01/08/2022

Site Set-Up and Construction Works on  the New-Build B960

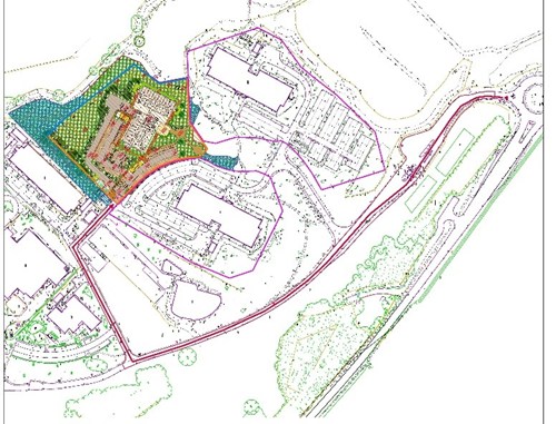
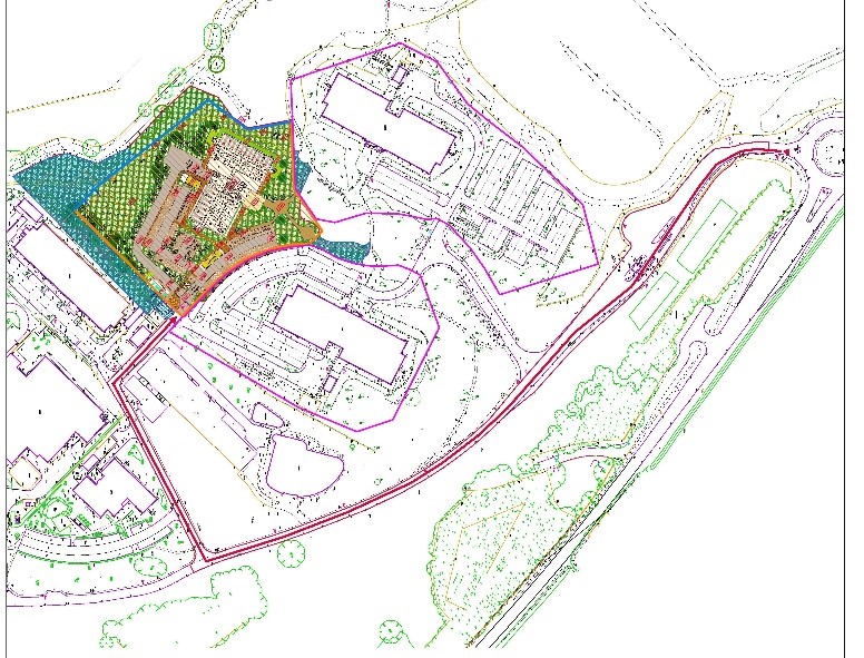
Over the next few weeks the Main Contractor for the B960 construction project, SDC Builders, will be setting up their construction site in readiness for construction to begin. The route signage for construction traffic has already been put in place, the construction area has been fenced off and some excavation work for installing the site cabins has begun (see attached drawing for location and traffic route).

During the w/c 1st August the contractor site cabins will be put into place and temporary roads/parking created within the site compound. They will also create temporary services connections for power and water to the site. We will release updates as additional activity is programmed.

During this time and throughout the construction period, through access, via the Glenn Burge car park road, to the car parks at the rear of the Bennet Building and the Kadans building (B900) will be limited. Access to both car parks these should be via the road running between Eddeva and the Jonas Webb buildings (Campus Map).


Thank you for your understanding, if you have any questions please email chris.chapman@babraham.co.ukChris Chapman


Director of Campus and Facilities 
Babraham Research Campus Ltd